LENAU Immobilien bietet Ihnen hier ein optimal aufgeteiltes, großzügiges Einfamilienhaus mit einem Traumblick ins Calenberger Land zum Kauf. Das freistehende Haus wurde 1989 erbaut und besticht neben seiner Aufteilung vor allem durch die Hanglage.
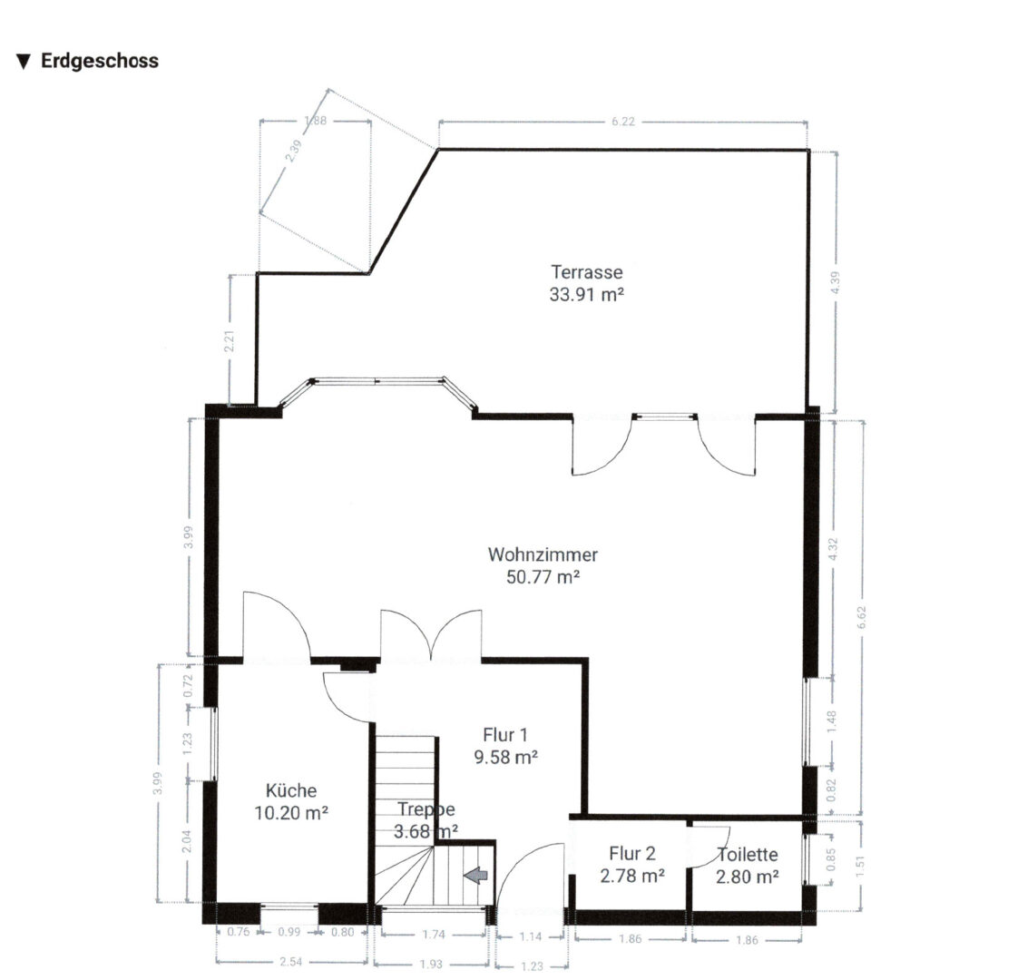
Vom großen Eingangsbereich aus erreichen Sie alle Räume, die sich im Erdgeschoss befinden. Das Highlight ist hier der offene Wohn- und Essbereich, von welchem aus man einen tollen Blick in den schönen Garten hat. Hier können Sie Ihren gestalterischen Vorstellungen auf fast 51m² freien Lauf lassen! Durch die großen Fenster wird das Haus stets angenehm erhellt. Von Hier aus erfolgt der Zugang auf die sonnige Terrasse und den angrenzenden Garten. Der Garten erstreckt sich auf beiden Seiten um das Haus und bietet reichlich Platz zum Sonnen und Entspannen!
Die angrenzende Küche ist mit einer funktionalen Einbauküche ausgestattet. Die 2 Fenster sorgen auch hier für Tageslicht und frische Luft. Die Küche verfügt über sämtliche Kochmöglichkeiten und bietet zudem reichlich Staufläche.
Das Erdgeschoss verfügt außerdem über ein Gäste-WC.
Über eine Holztreppe erreichen Sie das Obergeschoss. Hier befinden sich drei ähnlich große Zimmer. Die Nutzungsarten sind ganz Ihnen überlassen - Sie eignen sich ideal als Schlafzimmer, für Ihre Kinder oder auch als Büro. Eine Besonderheit ist, dass das Haus im Obergeschoss 2 vollwertige Badezimmer hat. Das Badezimmer linkerhand des Treppenhauses hat eine Badewanne, das Bad auf der anderen Seite eine Dusche. Beide Bäder sind mit einem Fenster versehen.
Über eine ausklappbare Treppe gelangen Sie auf den Dachboden, der einiges an Stauraum bietet.
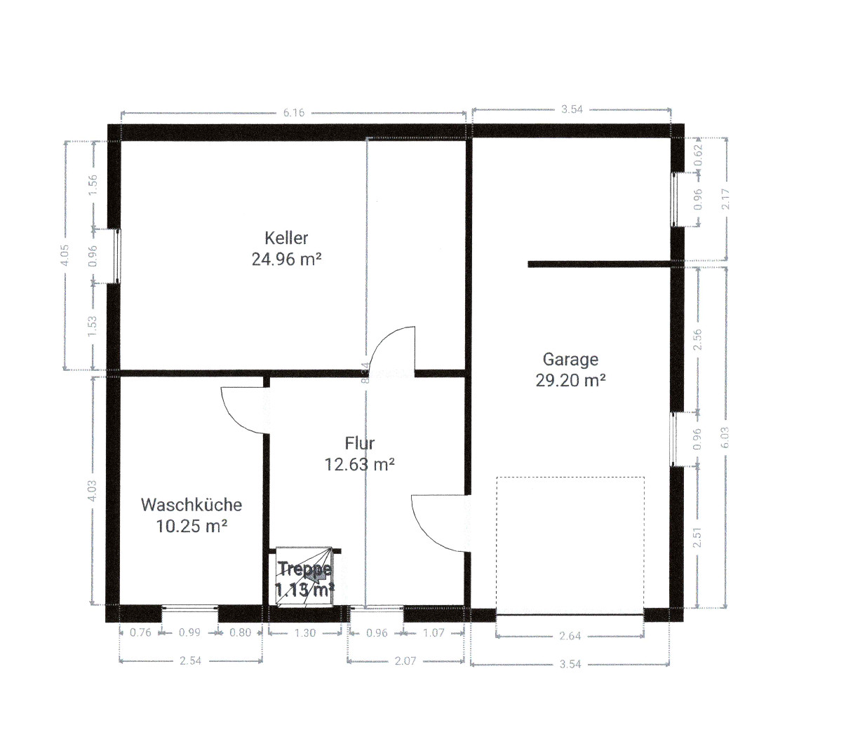
Das gesamte Haus ist unterkellert. Der Keller erstreckt sich über 2 große Räume, in einem davon steht die Gasheizung (Baujahr 2019). Hier können Sie sämtliche Utensilien verstauen und bei Bedarf auch einen Hobbyraum oder ähnliches errichten. Die Garage führt direkt in den Keller, so können Sie bequem aussteigen und sind direkt in Ihrem Haus.



















